Page suivante
Page précédente
Solliès-Toucas (83210)

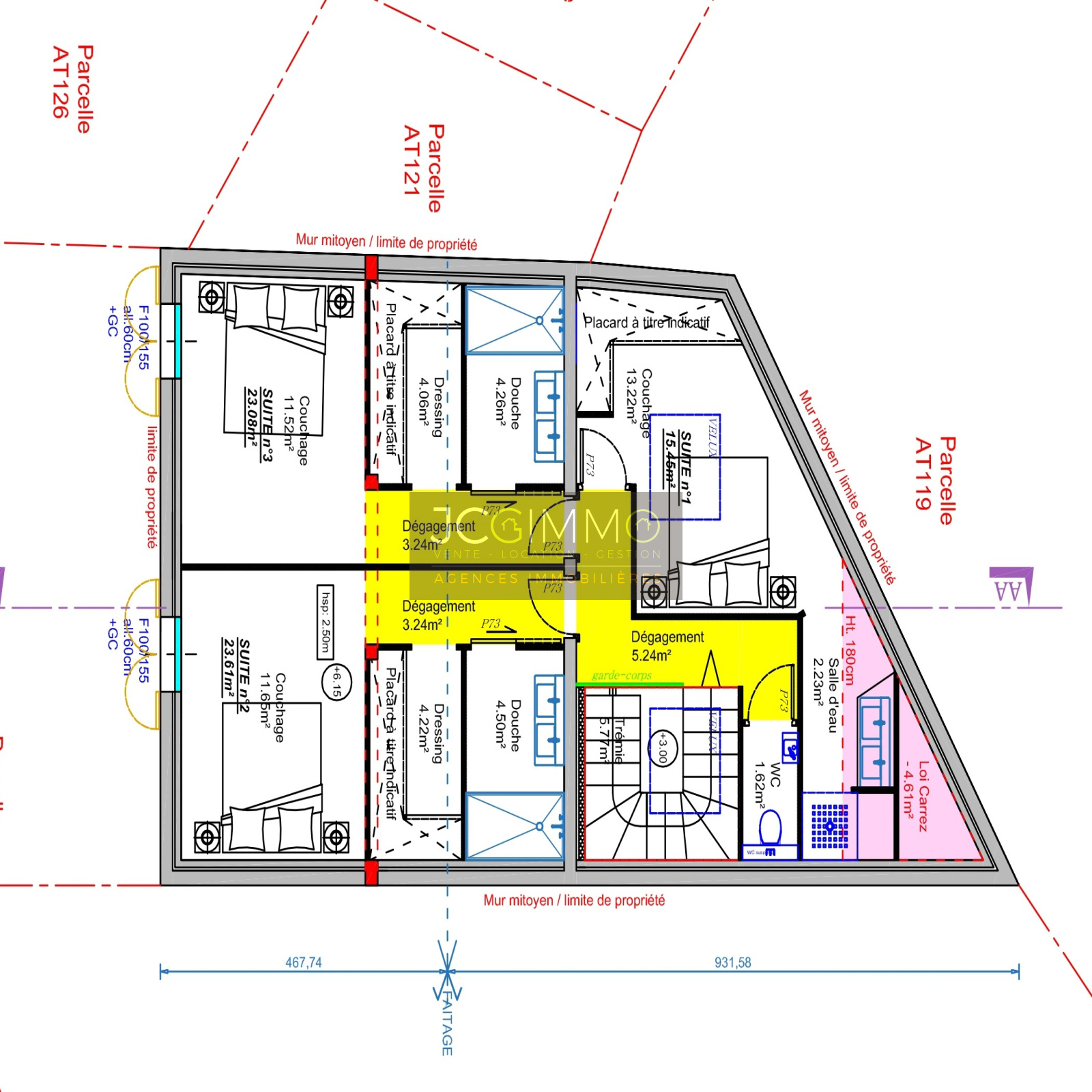
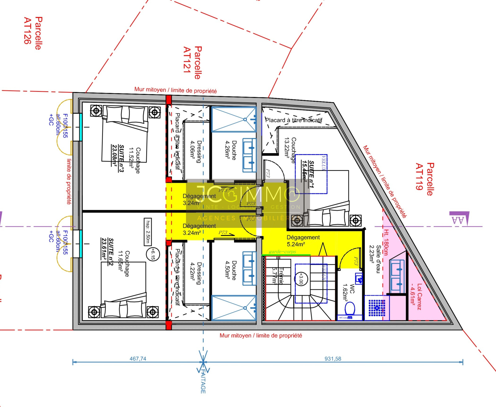
Maison 4 pièce(s) 3 chambre(s) 120 m²

3
97 m²
2
115 000 €
Réf 4924-A

RETOUR A LA VENTE !!!!!!!

Découvrez une opportunité unique à Solliès-Toucas (Valaury) en EXCLUSIVITE avec JCG IMMO !

Nichée dans un paisible hameau, cette propriété vous offre la chance de créer votre propre havre de paix.

Imaginez-vous dans une maison de ville T4 spacieuse et moderne, avec 3 chambres pour accueillir toute votre famille.

Le permis de construire est déjà approuvé, vous permettant de réaliser votre projet sans attendre.

Vous pourrez profiter d'une surface habitable généreuse de 120m², agrémentée d'une terrasse ensoleillée de 25m² pour des moments de détente en plein air.

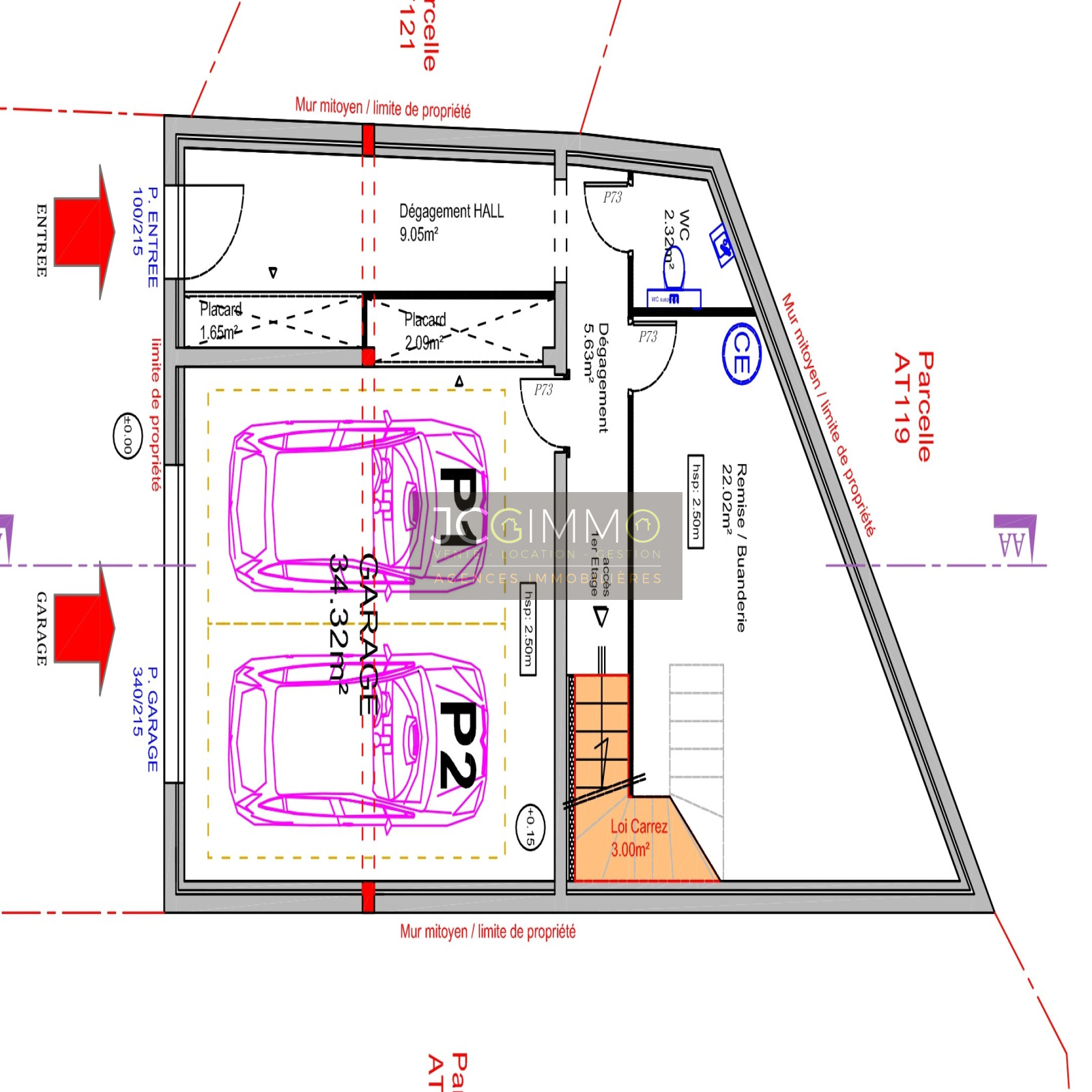
De plus, avec un sous-sol/garage de 80m², vous aurez amplement d'espace pour vos véhicules, vos outils ou même pour créer une salle de loisirs supplémentaire.

Les plans sont à votre disposition sur simple demande, vous permettant de visualiser dès maintenant le potentiel de cette propriété exceptionnelle.

Ne manquez pas cette occasion unique de réaliser votre projet immobilier dans un cadre idyllique. Contactez-nous dès aujourd'hui pour organiser une visite !


ANIEL Tom Carte de collaborateur n°ADC83062024000000136 Immatriculé au RCS sous le n°928 699 891 RSAC Toulon N° de police d'assurance EDIFICE N°7.953.190/S17747996

Bilan énergétique

Diagnostics énergetiques
A propos de ce bien Caractéristiques de ce bien
  • Surface 120 m²
  • carrez 120 m²
  • terrain 97 m²
  • séjour 45 m²
  • 3 chambre(s)
  • 3 salle(s) d'eau
  • construit en 1900
  • cuisine américaine
  • 2 garage(s)
  • exposition Sud
  • 3 côté(s) mitoyen(s)
  • 3 niveau(x)
  • terrasse
  • quartier VALLAURIS

Financier

Informations financières
Prix de vente 115 000 € Les honoraires d'agence seront intégralement à la charge du vendeur

Autour du bien

Découvrez le quartier

Simulation

Calcul des mensualités
* Champs obligatoires
JCG Immo Solliès-Pont Nous contacter