Page suivante
Page précédente
Toulon (83000)

Appartement 6 pièce(s) 5 chambre(s) 139 m²

1
Ascenseur
Réf 3932-a

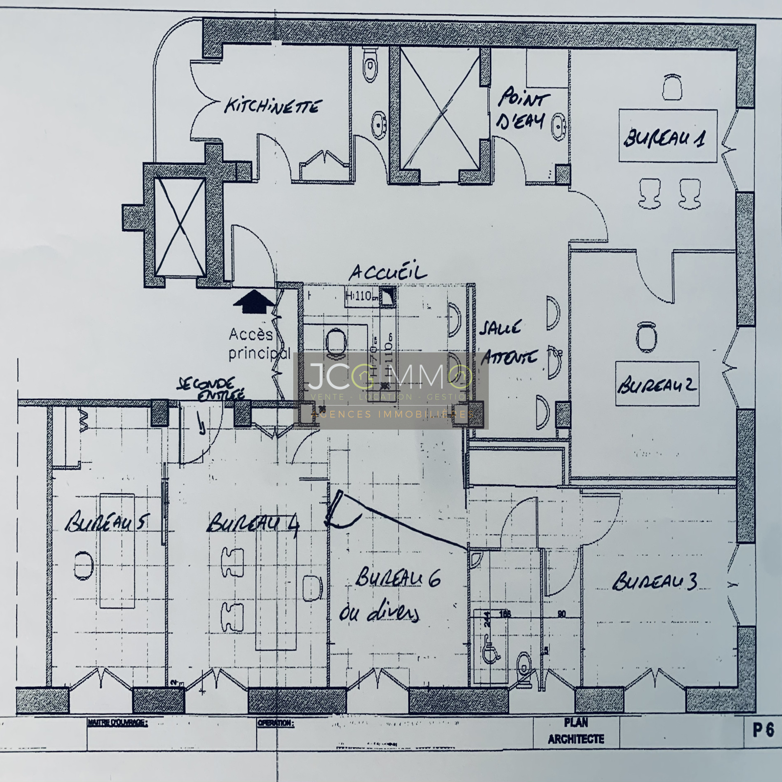
RARE A LA VENTE ! Belle surface de 139m² en parfait état situé à deux pas du Palais de Justice de Toulon, sur le Boulevard Maréchal Foch, dans un bel immeuble haussmannien avec ascenseur.

Cet appartement propose une surface totale de 139m². Il est actuellement occupé par un cabinet médical. Il est composé de deux lots de copropriété, et peut être modulé en un grand et spacieux appartement, ou être divisé en deux appartements habitables indépendants, tels qu’ils étaient à l’origine, ou bien former une formidable colocation étudiante (proximité Chalucet). Possibilité de recréer 2 appartements indépendants très facilement, chacun possède déjà son entrée indépendante, son numéro de lot de copropriété, ses compteurs. Idéal investisseurs ou marchand de biens.

Le local se compose actuellement 5 à 6 chambres selon configuration, d’un hall d’accueil, deux WC, point d’eau, et d’un vestiaire. Possibilité de créer deux appartements T3 de 70m² chacun environ à moindre coût (prévoir petite cuisine et aménagement salle de bain)

 

Toutes les pièces possèdent une fenêtre sur l’extérieur. Ce local est en parfait état. De plus, il est équipé d’une climatisation gainable, et de portes d’entrée sécurisées neuves. Les locaux peuvent être vendus meublés.

Pas de balcon, terrasse, ni parking.

 

VISITE VIRTUELLE DISPONIBLE SUR DEMANDE !

Votre conseiller exclusif Olivier BELTRAMONE 06 74 64 66 83, Carte de collaborateur n°ADC8306 2018 0001 53626, Immatriculé au RCS sous le no 844 110 429 RSAC Toulon, No de police d'assurance SPVie No 7953.190/BOD39.

Bilan énergétique

Diagnostics énergetiques
A propos de ce bien Caractéristiques de ce bien
  • Surface 139 m²
  • carrez 139 m²
  • 5 chambre(s)
  • 1 salle(s) de bain
  • Chauffage individuel : air pulsé (climatisation)
  • exposition Sud
  • 1er étage
  • ascenseur
  • cave
  • accès handicapé

Info copro

Copropriété
  • Copropriété Oui
  • Lot n° 16 27
  • Quote part annuelle des charges 1 920 €

Financier

Informations financières
Les honoraires d'agence seront intégralement à la charge du vendeur  
Taxe foncière annuelle 2 600 €

Autour du bien

Découvrez le quartier

Simulation

Calcul des mensualités
* Champs obligatoires
JCG Immo Solliès-Pont Nous contacter