Page suivante
Page précédente
Rocbaron (83136)

Villa 5 pièce(s) 3 chambre(s) 123 m²

1600 m²
2
Piscine
445 000 €
Réf 5432

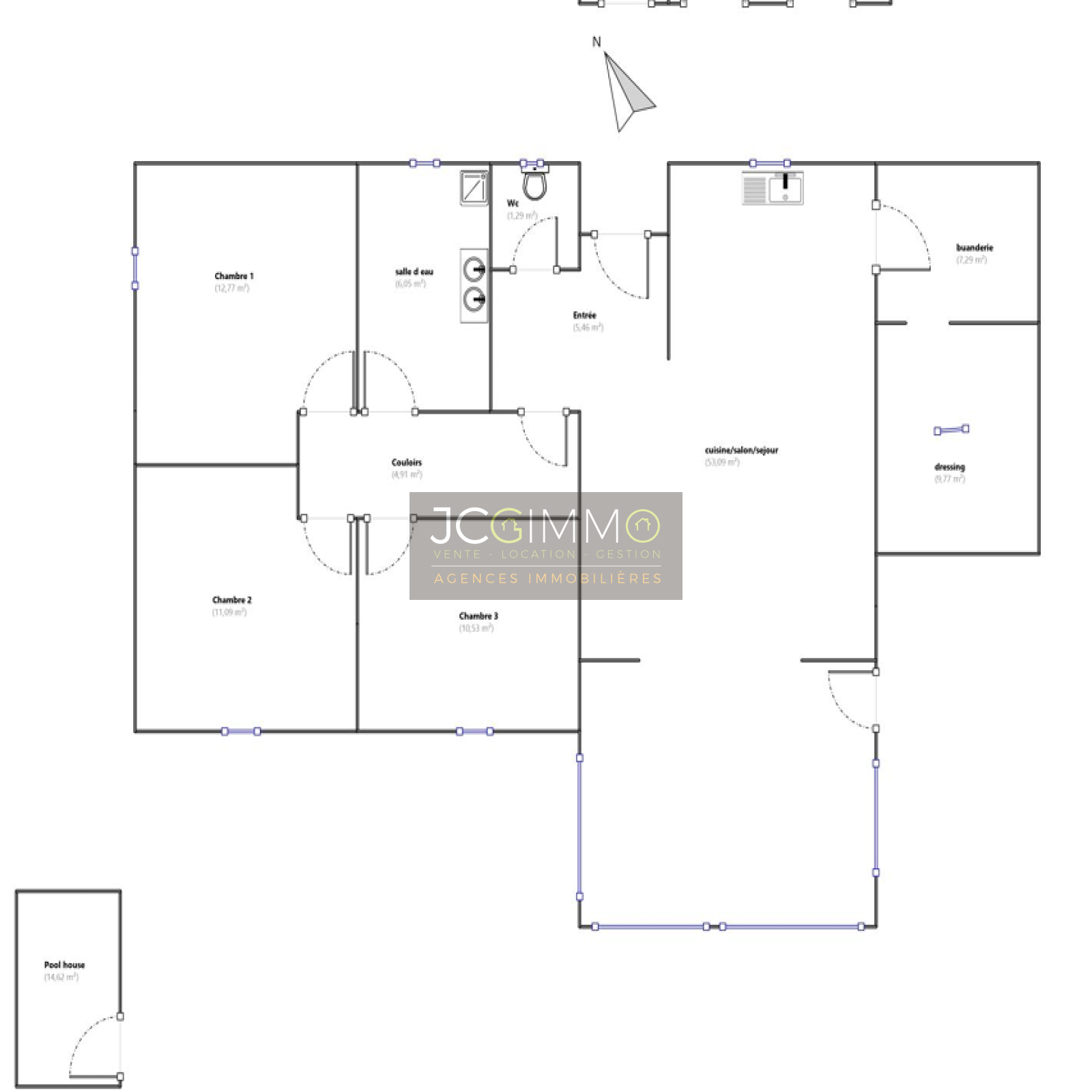
Maison plain pied 3 chambres à Rocbaron – Piscine – 123 m² + double garage + pool house + atelier

JCG Immo : Coup de cœur garanti : Construite en 2002, maison au calme, sans vis-à-vis, découvrez cette maison T5 individuelle non-mitoyenne, exposée Sud-Ouest, sur un terrain plat et entièrement clos de 1 600 m² avec piscine et nombreuses annexes.

Intérieur chaleureux & fonctionnel

- Entrée accueillante menant à une grande pièce de vie de 53 m² avec cuisine ouverte et espace salon/séjour doté d’une cheminée insert
- Trois chambres confortables avec rangements
- Salle d’eau
- WC indépendant
- Dressing et buanderie aménagés
- Climatisation gainable assurant confort été comme hiver
- Véranda lumineuse ouvrant sur la piscine et le jardin

Extérieurs & dépendances

- Piscine Desjoyaux 8 x 4 m avec volet roulant sécurisé
- Pool-house de 15 m²
- Double garage de 27 m² + atelier de 11,6 m²
- Abri à bois, portail automatique
- Plusieurs emplacements de stationnement dans la propriété
- Eau de ville + forage, parfait pour la piscine et l’arrosage

- Fosse septique
- Terrain plat, arboré et entièrement clôturé

Localisation

Implantée au bout d'impasse, dans un secteur calme et résidentiel, à proximité immédiate des commerces, écoles
Accès facile : autoroute A57 e et gare TER de Cuers–Pierrefeu à 12 min.

Notre avis

Une maison rare : plain-pied, individuelle, au calme absolu, sans vis-à-vis, avec piscine, double garage, dépendances et un grand terrain plat de 1 600 m². Un bien idéal pour une famille recherchant confort et sérénité, à deux pas des commodités.


Leslie GUIBERT Immatriculé au RCS sous le n° 512302431 RSAC Toulon N° de police d’assurance MMA IARD 775652125MM

Bilan énergétique

Diagnostics énergetiques
A propos de ce bien Caractéristiques de ce bien
  • Surface 123 m²
  • terrain 1 600 m²
  • 3 chambre(s)
  • construit en 1997
  • 2 garage(s)
  • exposition Sud
  • 1 niveau(x)
  • vue DEGAGEE

Financier

Informations financières
Prix de vente 445 000 € Les honoraires d'agence seront intégralement à la charge du vendeur
Taxe foncière annuelle 1 500 €

Autour du bien

Découvrez le quartier

Simulation

Calcul des mensualités
* Champs obligatoires
JCG Immo Solliès-Pont Nous contacter