Page suivante
Page précédente
Hyères (83400)

Appartement 4 pièce(s) 3 chambre(s) 93 m²

1
Ascenseur
1
Réf 4559

VENDU - HYERES (QUARTIER GARE) - NOUVEAUTE en EXCLUSIVITE chez JCG IMMOBILIER - N'hésitez pas à me contacter directement au 06 72 64 22 40 pour faire partie des premiers à visiter !

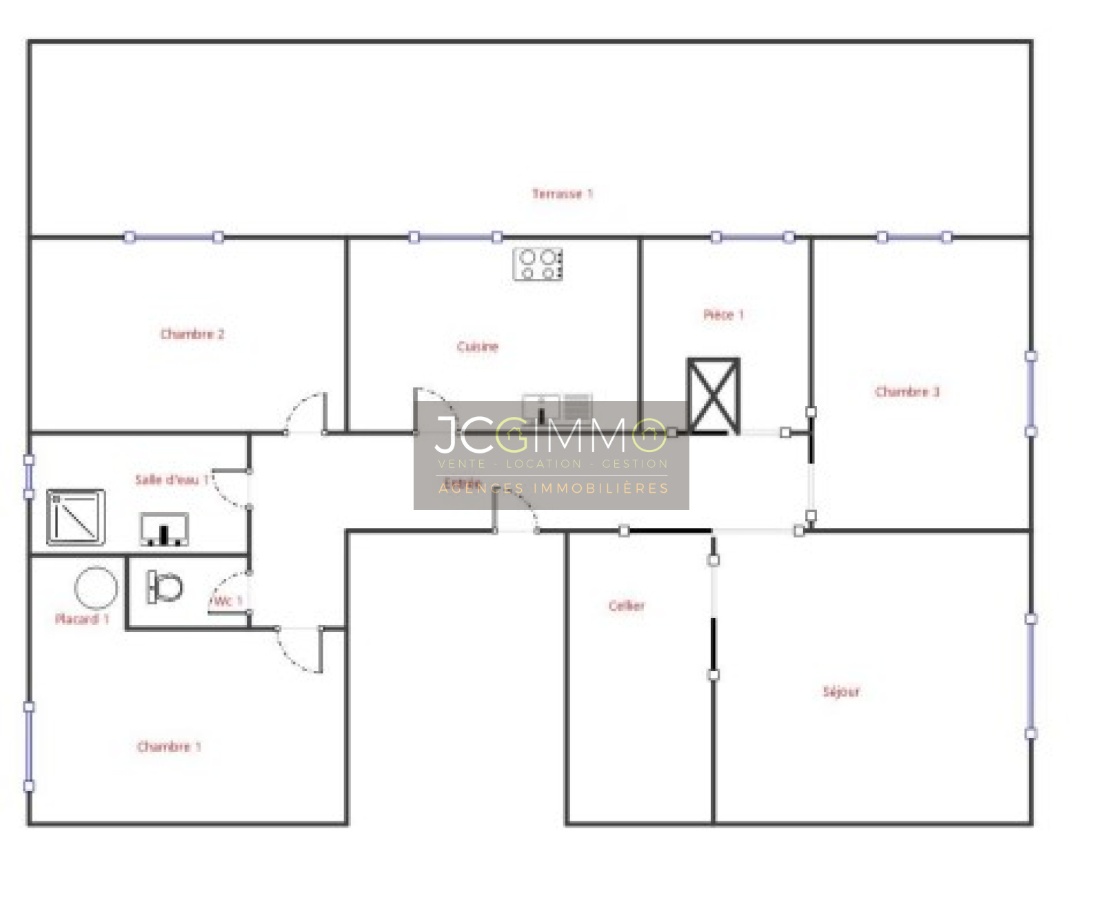
Nous vous proposons de découvrir ce bel appartement T4 VUE MER au 4ème et DERNIER ETAGE (avec ascenseur) d'une surface de 92,76 m² (CARREZ) avec une GRANDE TERRASSE de 43,85 m² et un DOUBLE GARAGE BOX FERME de 33,97 m².

L'appartement, au sein d'une résidence sécurisée et entretenue construite en 1977, est situé dans le quartier recherché de la gare de Hyères à proximité de l'ensemble des commerces.

Il se compose d'une entrée de 12,5 m², d'un double séjour de 23,9 m², 1 cuisine équipée séparée, aménagée et équipée de 10,13 m², 3 chambres (10,45 m², 10,35 m² et 9,21 m²), un bureau de 6,9 m², 1 cellier de 4,94 m², une salle de douche de 3,28 m², un wc séparé et une terrasse de 43,85 m² bénéficiant d'une double exposition SUD/EST-SUD/OUEST avec VUE MER !

PRESTATIONS : Fenêtres PVC double vitrage, volets électriques, climatisation réversible dans toutes les pièces, cumulus 150 L, cuisine équipée (hotte, plaques, four, micro-ondes, lave vaisselle, lave linge).

CERISE SUR LE GATEAU : Excellents diagnostics ! (DPE=C, pas d'amiante, pas de termite et aucune anomalie électrique !)

NOTRE AVIS : Nous avons apprécié la RENOVATION COMPLETE de l'appartement (INTERIEUR et EXTERIEUR), la situation au dernier étage (avec ascenseur), le format familial, le double garage box fermé et bien sûr la grande terrasse de 44 m² vous offrant un très bel espace extérieur avec une vue dégagée sur la mer. Vous n'avez plus qu'à poser vos valises et profitez de cet appartement. Le quartier recherché et la proximité des commodités sont des atouts importants.

A visiter RAPIDEMENT ! BIEN RARE DANS CE SECTEUR ! Coup de COEUR assuré !

NBRE DE LOTS : 45 (13 lots à usage d'habitation - 19 lots à usage de stationnement - 13 lots à usage de stockage) - Lot n° 13 (100/1000èmes des parties communes générales). Lot n° 49 (24/1000èmes des parties communes générales).

CHARGES DE COPROPRIETE MENSUELS : 125€ (entretien des parties communes, ascenseur, charges générales). TAXES FONCIERES : 1880 €

Montant estimé des dépenses annuelles d'énergie pour un usage standard : entre 750 € et 1080 € par an. Prix moyens des énergies indexés au 01/01/2021. Consommation énergie primaire : 128 kWh/m²/an. Les informations sur les risques auxquels ce bien est exposé sont disponibles sur le site Géorisques : www.georisques.gouv.fr

Le prix affiché inclus les honoraires d'agence. Jacques de Lacretelle Immatriculé au RCS sous le n° 820 251 809 RSAC Toulon N° de police d’assurance Allianz Actif Pro 60 594 675

Bilan énergétique

Diagnostics énergetiques
A propos de ce bien Caractéristiques de ce bien
  • Surface 93 m²
  • carrez 92,76 m²
  • séjour 23,90 m²
  • 3 chambre(s)
  • 1 salle(s) d'eau
  • construit en 1977
  • cuisine séparée (équipée)
  • 1 garage(s)
  • exposition Sud-Ouest
  • 4ème étage
  • 4 étage(s)
  • ascenseur
  • vue Vue dominante et dégagée
  • terrasse

Composition

Composition de ce bien

Etage 4

  • entrée 12.5 m²
  • chambre 10.45 m²
  • chambre 9.21 m²
  • chambre 10.35 m²
  • salon/sejour 23.9 m²
  • cuisine 10.13 m²
  • salle d'eau 3.28 m²
  • WC 1.1 m²
  • cellier 4.94 m²
  • bureau 6.9 m²
  • terrasse 43.85 m²

Rez-de-chaussée

  • garage 33.97 m²

Info copro

Copropriété
  • Copropriété Oui
  • Lot n° 13; 49
  • Nombre de lots 2
  • Quote part annuelle des charges 1 500 €

Financier

Informations financières
Les honoraires d'agence seront intégralement à la charge du vendeur  
Taxe foncière annuelle 1 880 €

Autour du bien

Découvrez le quartier

Simulation

Calcul des mensualités
* Champs obligatoires
JCG Immo Solliès-Pont Nous contacter